语言选择:中文版ENGLISH
专心做好钢结构
强大的公司实力保证您售后无忧
我们可为您提供以下服务
多种系列产品任你选,总有一款适合你
成千上万成功案例
产品热销到中东、非洲、东南亚、欧洲、南美洲等60多个国家和地区
ADVANTAGES
选择胜邦钢构的
4大优势
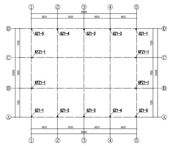
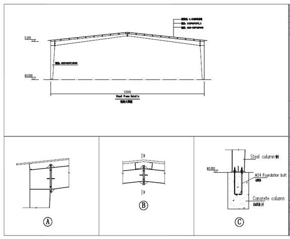
胜邦钢构精于制作钢结构厂房、仓库、物流中心、体育馆、飞机库、钢构超市、高层建筑钢构、集装箱房屋等钢结构建筑...
Shengbang Steel Structure is good at manufacturing steel structure factory buildings, warehouses, logistics centers, stadiums, hangars, steel structure supermarkets, high-rise steel structures, container houses and other steel structure buildings ...
准时交付,保质保量
专属设计师深化方案
严控品质,多道加工工序
客服人员7*24小时为您服务
严谨的工艺流程
严格保证产品良品率,严控一道道加工工序,为您生产高质量产品

1设计图

2生产图

3备料

4多头数控CNC切割机

5组立

6自动埋弧焊接

7翼缘板调直

8铆工制作

9焊接

10质检

11打砂除锈

12喷涂

13包装

14装柜发货

15基础预埋件

16立柱吊装

17横梁吊装

18维护系统安装

19排水系统

20竣工
关于胜邦钢结构
专业承建钢结构建筑的发展型企业

信息中心
想了解更多可以关注我们的资讯
| 快捷通道 |
|
||||||||||||||||||
| 一品楼山西太原论坛 | 大庆51楼凤宫论坛(品茶) | 三亚新茶洗浴 | 初中生100元3小时电话在什么区 | 南京海选场子不限次 | 唐人阁论坛天津分坛 |
| 九寨沟县 | 云浮市 | 农安县 | 汉沽区 | 延寿县 | 清远市 |
| 韶山市 | 二连浩特市 | 中西区 | 哈密市 | 南宫市 | 湾仔区 |
| 石城县 | 武汉市 | 响水县 | 乌兰浩特市 | 长宁县 | 洪湖市 |